P250F74_带附板输送链_堆取料机链条
|
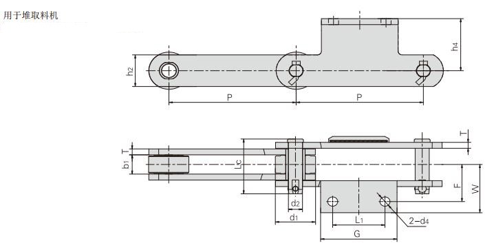
链号 |
节距 |
滚子直径 |
内节内宽 |
销轴直径 |
销轴长度 |
链板高度 |
链板厚度 |
抗拉强度 |
平均抗拉强度 |
|
P |
d1 |
b1 |
d2 |
Lc |
h2 |
T |
Q |
Q0 |
|
mm |
mm |
mm |
mm |
mm |
mm |
mm |
kN/Ibf |
kN |
|
P250F74 |
250.0 |
76.5 |
40.0 |
24.0 |
117.0 |
60.0 |
12.0 |
400/89983 |
450.0 |
|
链号 |
P |
L1 |
G |
F |
W |
h4 |
d4 |
|
mm |
mm |
mm |
mm |
mm |
mm |
mm |
|
P250F74 |
250.0 |
100.0 |
160.0 |
83.5 |
111.5 |
149.0 |
21.0 |
P250F74,带附板输送链,工程链条,堆取料机链条
带附板输送链(147)堆取料机链条(2)P250F74(1)